Furnished Rentals in Val d'Isère - Page 18
West Center 23 Square meter 2 people
Functionnal apartment, close to the slopes.
West Center 127 Square meter 8 people
Prestigious duplex with high-end decoration, located in a quiet area.
Snow front East Center 125 Square meter 10 people
Wonderful newly-built apartment of very high standing, close to the slopes.
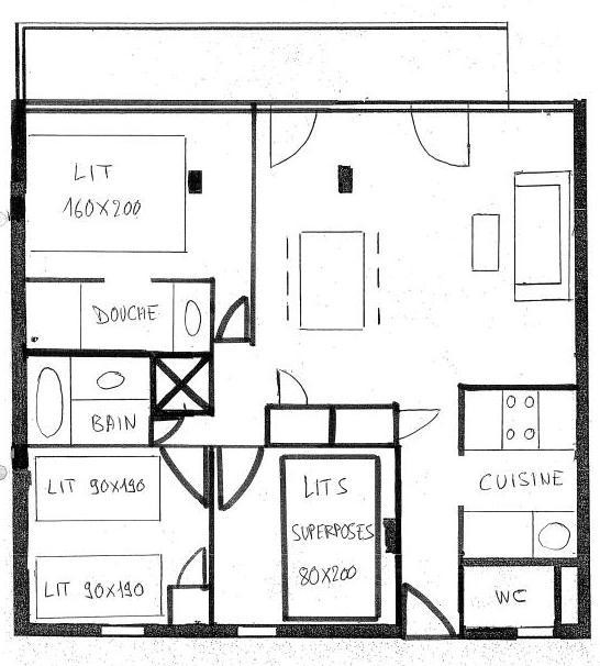
Center 46 Square meter 4 people
Nearby the slopes, in the old town of Val d'Isère.
La Daille Ski in / Ski out 51 Square meter 6 people
Ski in ski out, south-facing balcony, 2 shower rooms.
Rond Point des Pistes Ski in / Ski out 40 Square meter 5 people
In a family chalet, with a south-facing balcony and 2 bathrooms. Recent and functional kitchen. Close to the slopes.
Center 42 Square meter 4 people
Located on the snow front, this apartment has an ideal location for your ski vacation !
West Center 77 Square meter 5 people
Good standing semi-detached chalet, all comfort with stunning view onto the village.
La Daille 40 Square meter 6 people
Comfortable apartment, with balcony and mountains view.
Center 35 Square meter 4 people
Very bright, with a south-facing balcony. benefits a central location.
Center Snow front 71 Square meter 8 people
Rustical, modest standing in a Ski-in/Ski-out chalet which is located in the heart of the resort.
Snow front East Center 45 Square meter 5 people
Comfortable with a South facing balcony, close to the slopes and the Old Village.
Center 54 Square meter 6 people
Comfortable apartment with a mezzanine, ski locker, close to the center and the slopes.
West Center 65 Square meter 5 people
Situated in a desirably calm sector of Les Carats, it has a large and sunny terrace.
Center Ski in / Ski out 24 Square meter 4 people
Renovated and very bright, it is ideally located ski in ski out.
La Daille Ski in / Ski out 33 Square meter 6 people
Functional, ski in ski out, south-facing and mountains view.
Legettaz Ski in / Ski out 66 Square meter 6 people
Duplex with beautiful mountain view. Quiet area between the Center and the Vallée du Manchet. In modern and warm residence. Beautiful volumes and balcony.
Center 55 Square meter 6 people
Ideally located in the center, ski-in/ski-out. It has a southern exposure and has a parking space.
Legettaz Ski in / Ski out 66 Square meter 6 people
Duplex with beautiful mountain view. Quiet area between the Center and the Vallée du Manchet. In modern and warm residence. Beautiful volumes and balcony.
Center 35 Square meter 6 people
With a central location and a south-facing balcony.
In a new chalet, at the foot of the slopes, very good services
Center 350 Square meter 14 people
Beautiful and finely decorated chalet with cathedral living room and fireplace. Cinema room, swimming pool and hammam. Located in the old village of Val ...
East Center 68 Square meter 7 people
Spacious and modern apartment on several levels, indoor parking space, close to the snow front.
Center 30 Square meter 4 people
Simple and functional apartment, located close to the center of the resort.


























































































































































































































































































































































